Emplacement : Bir Mcherga – Zaghouan
Surface : 350 m²
Année : 2025
Nature d’intervention: Nouvelle construction
L’architecture du projet se distingue par sa simplicité et sa justesse, puisant son inspiration dans le patrimoine bâti tout en l’interprétant de manière contemporaine. Les volumes, volontairement épurés, dialoguent avec un terrain agricole largement végétalisé, tandis que les matériaux et les formes sobres permettent une intégration harmonieuse dans le paysage environnant. L’implantation a été pensée pour créer une architecture à la fois ouverte sur son environnement et protégée, où l’on perçoit le paysage sans pour autant en permettre l’accès direct.
Au cœur de cette réflexion, le patio occupe une place essentielle. Héritage des traditions méditerranéennes et particulièrement tunisiennes, il structure l’espace et favorise une vie intérieure tournée vers la lumière et la nature, tout en préservant intimité et fraîcheur.
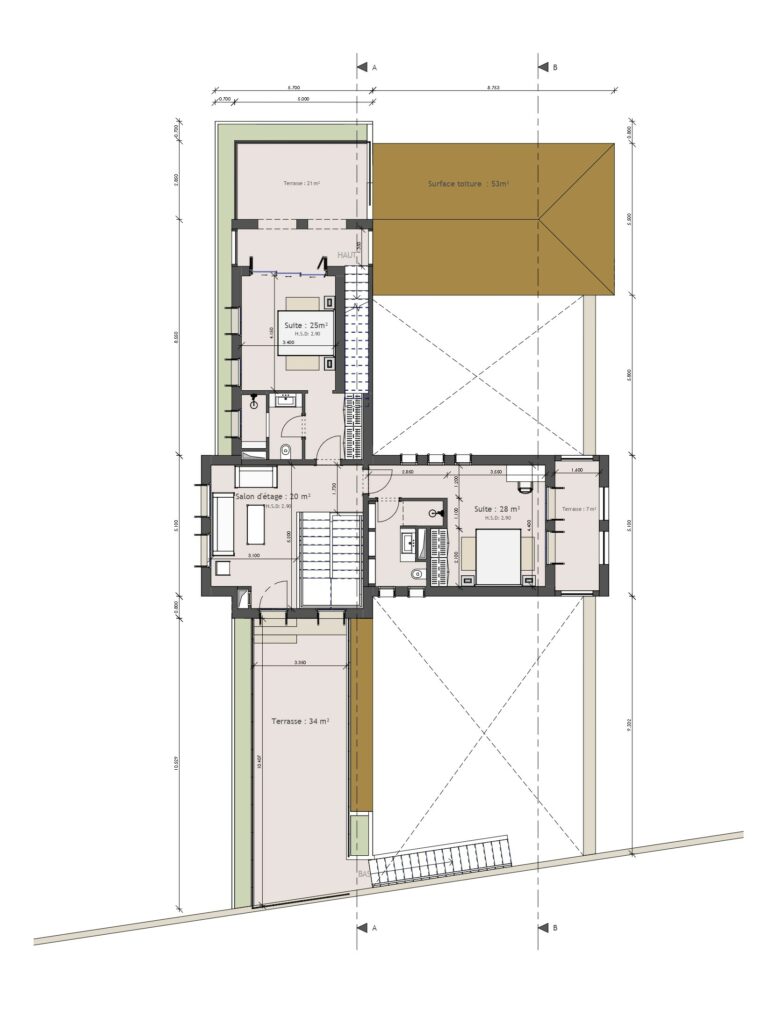
L’organisation générale s’articule ainsi autour de deux patios, véritables pôles de respiration autour desquels se déploient les différentes fonctions de la maison. Ils permettent une circulation fluide et une distribution claire des espaces, renforçant le lien entre intérieur et extérieur.
Chacun de ces patios possède une identité propre : l’un est conçu comme un espace de convivialité, pensé pour accueillir et partager, tandis que l’autre privilégie le calme et l’intimité, favorisant la contemplation et le repos.
Enfin, les ouvertures jouent un rôle déterminant. Les arcs, réinterprétés de manière contemporaine, rappellent le patrimoine vernaculaire tout en offrant des lignes sobres et élégantes. Les percements sont dessinés avec mesure, cadrant des vues précises sur le paysage et diffusant une lumière douce, contribuant à une architecture à la fois ancrée dans son territoire et résolument actuelle
All rights reserved © 2025 Rayin
(
)